Convocatoria y Bases IV OLIMPIADA Ingeniera de la Edificación EPC
El objetivo de la IV OLIMPIADA de “INGENIERÍA EN LA EDIFICACIÓN: Construyendo con Ingenio” es la promoción de la cultura científica, de la tecnología y de la innovación, entre el alumnado de ESO, Bachillerato y Ciclos Formativos de grado medio y superior, con objeto de despertar vocaciones entre los escolares e interés por el ámbito tecnológico e ingenieril de la Edificación.
Esta OLIMPIADA propone el desarrollo de un proyecto que recoge aspectos necesarios de la ejecución de una obra (aspectos de diseño, constructivos, selección de materiales, económicos y de recursos humanos). El proyecto debe abordarse desde el paradigma de la sostenibilidad, fomentando la sensibilidad y el respeto por el medio ambiente y ayudando a descubrir, aprender y valorar la contribución de la ciencia y la tecnología, así como a comprender los elementos y procedimientos fundamentales de la investigación y de los métodos científicos.
Objetivos específicos.
Los objetivos específicos de las olimpiadas son:
- Descubrir los elementos esenciales que relacionan la construcción de edificios con los Objetivos de Desarrollo Sostenible (ODS)
- Introducir al alumnado de ESO, Bachillerato y de Ciclos Formativos de grado medio y superior, en el mundo de la Ingeniería y la construcción de edificios.
- Fomentar el trabajo en equipo.
- Entrenar la comunicación oral y escrita de las/los participantes exponiendo sus trabajos en el ámbito universitario.
Formulación del problema a resolver.
Para el desarrollo práctico de la Olimpiada, y como elemento unificador de los trabajos, se utilizará, como base, el edificio escolar de cada equipo concursante. El trabajo consistirá en un análisis del edificio que las/los concursantes conocen bien y en la elaboración de una propuesta de reforma parcial del edificio con los siguientes objetivos:
La edificación se desarrolla en dos plantas de diferente ocupación, con el siguiente programa de necesidades:
- Incluir nuevas necesidades (aulario, seminarios, zonas de dirección y/o administración, espacios comunes, deportivos…) atendiendo a la mejora de su sostenibilidad, accesibilidad y funcionalidad.
Teniendo en cuenta que una construcción sostenible es aquella que es eficiente y a la vez respetuosa con el medio ambiente, ahorra energía, agua y recursos y reduce la contaminación, se busca diagnosticar el edificio escolar desde distintas áreas de conocimiento, para identificar las deficiencias o aspectos mejorables y poder proponer soluciones.
Para ello se recomienda seguir el siguiente esquema, adaptado al nivel de los grupos participantes, a criterio de las/los coordinadores/tutores del propio centro:
Fase 1: Prediagnosis. Identificar, como usuarios, consultando con los responsables del centro, dirección, profesorado, personal de administración y compañeros, aquellas necesidades del edificio, que requieran de intervenciones parciales, para optimizar su uso o su accesibilidad: gimnasio, aularios, zonas de distribución (pasillos y escaleras), espacios exteriores, …
Fase 2: Recogida de datos. Esta segunda fase contempla, además, dos sistemáticas en la recogida de datos:
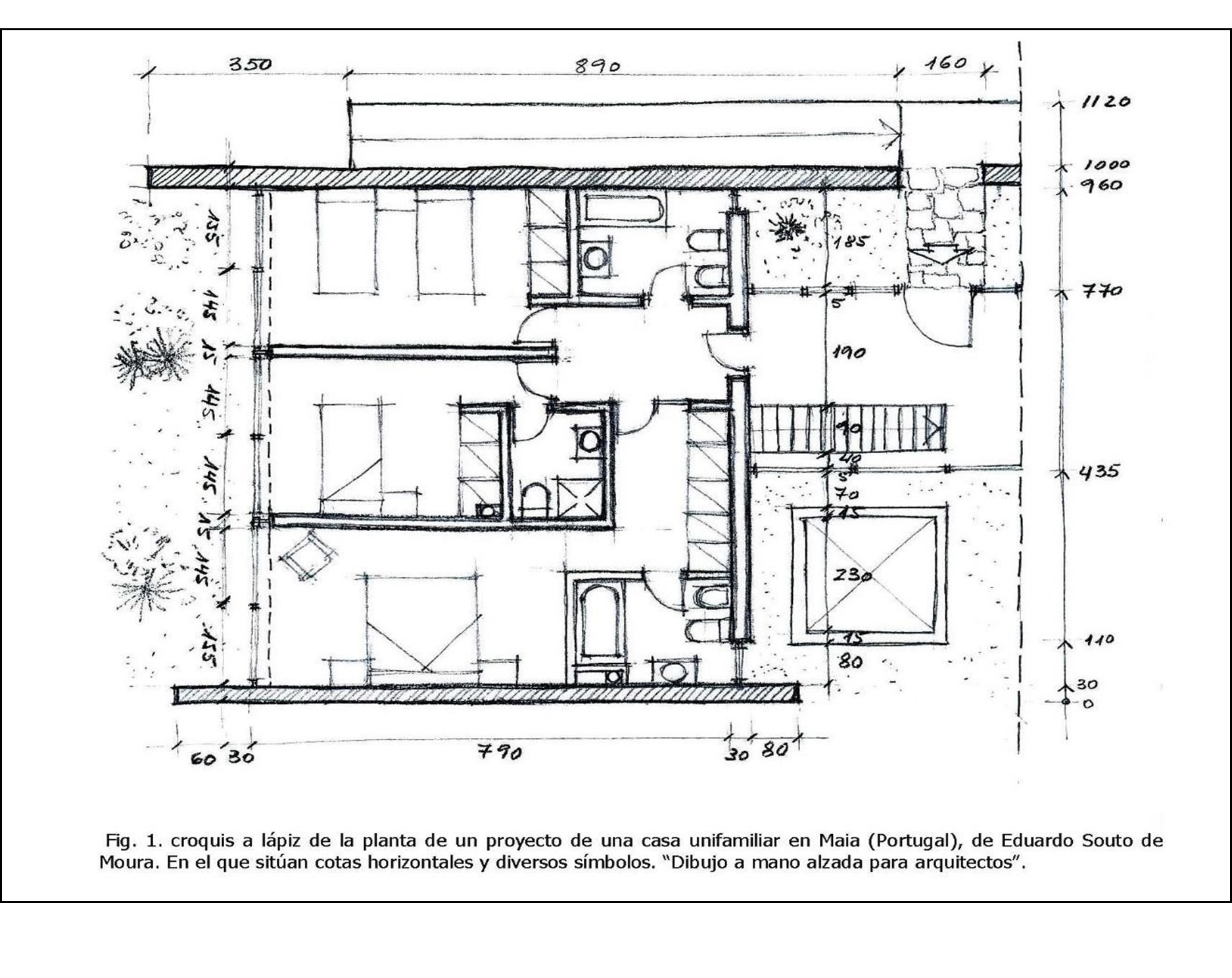
Una primera, a desarrollar por el propio equipo, en la que se trata de hacer un croquizado y un levantamiento gráfico de aquellas zonas del edificio en las que se quiere actuar. Para que el trabajo no sea excesivamente extenso, la suma de superficies construidas a dibujar no debe ser mayor de 500 m2 (pueden ser alguno/s de los siguientes elementos: 1 ó 2 aulas, pasillo y/o entrada, cafetería, secretaría, seminarios, sin tener en cuenta el mobiliario).
En esta primera fase se recomienda usar:
- Papel milimetrado o cuadriculado. Permite realizar más fácilmente un croquis a mano, de la estancia que se quiere medir, añadiendo a posteriori las cotas de medida.
- Lápiz y goma de borrar.
- Cinta métrica. Es una cinta de 10 a 50 metros, de metal o de tela plastificada, enrollada en una caja cilíndrica que la protege. Tiene una anilla en el extremo que facilita su extracción, y un pequeño manubrio para enrollarla.
- Cinta extensible: Hasta 5 metros de longitud. Acostumbran a ser metálicas y retraíbles automáticamente.
- Doble Metro de Madera o Metro de albañil: Por su rigidez, es adecuado para medir alturas y objetos de pequeño tamaño.
- Medidor por Láser: Son aparatos para medir longitudes, que permiten que la medición sea realizada por una sola persona.

La segunda sistemática de recogida de datos implica la búsqueda de indicadores que comportaran el uso de herramientas de investigación. Se pueden recoger:
- Indicadores generales: Zona climática, año de construcción del edificio, superficies construidas, número de usuarios, volumen de aire a climatizar, tipo de centro escolar, horas de uso/día, …
- Indicadores arquitectónicos: soluciones constructivas en fachada, particiones y cubierta, superficie de huecos en fachada, porcentaje de huecos en fachada, …
- Indicadores de gestión: tipo de mantenimiento, registro de condiciones de confort (térmico, lumínico, acústico, calidad del aire).
- Todos aquellos indicadores que consideren necesarios para poder definir la propuesta.
Fase 3: Propuestas de intervención. A partir de la recogida de datos y de la identificación de las deficiencias y/o necesidades detectadas, se pueden proponer mejoras en aspectos clave relacionados con:
- Soluciones relacionadas con la reforma. La nueva distribución, dará solución a los problemas detectados, con cambios parciales en la distribución del edificio, buscando mejorar los espacios sobre los que se actúe: accesibilidad, distribución, reubicación de espacios y usos …
- Materiales a emplear en la reforma, haciendo especial hincapié en la eficiencia y sostenibilidad de los mismos, procedencia, puesta en obra, mano de obra a utilizar…
Fase 4: Elaboración del trabajo. En base a las mejoras propuestas, se pide elaborar un proyecto de intervención que contenga los planos (o modelos digitales) de detalle elaborados por los alumnos, con un grado de definición acorde al nivel académico del equipo concursante. Se incluirán además especificaciones de todos los materiales, elementos y sistemas constructivos, así como la valoración económica y de los recursos humanos necesarios para su ejecución (oficios y responsables de ejecución).
Materiales de apoyo
Se trabajará con los planos (o modelos digitales).
Los equipos participantes podrán consultar los videos explicativos elaborados para las ediciones anteriores de las Olimpiadas, que pueden visualizarse a través de del canal de YouTube de la CODATIE
CODATIE - YouTube
Requisitos para participar
Este concurso está destinado a alumnado de ESO, Bachillerato y de Ciclos Formativos de grado medio y superior. Los equipos estarán constituidos por un mínimo de dos participantes y un máximo de cinco. Además, para entrar en la competición cada equipo deberá estar acompañado al menos por un/a profesor/a coordinador/a del proyecto, cuya misión será guiar al alumnado durante la competición. El/la tutor/a, que no será contada/o como integrante del equipo, podrá guiar a más de un equipo.
Funcionamiento del concurso y formato de entrega
El concurso está dividido en cuatro fases:
Fase 1: Inscripciones en la Escuela Politécnica de Cuenca. Hasta el 31 de enero de 2024
En esta fase, y en el ámbito de la Comunidad de Castilla-La Mancha, se realizará la inscripción de los equipos en la Olimpiada en el nivel académico que corresponda (ESO, Bachillerato y Ciclo Formativo de grado medio o superior), en la página de la Escuela Politécnica de Cuenca en la que se habilitará un enlace a través de la web: https//www.uclm.es/es/cuenca/epc/precampus/construyendoconingenioiv.
Un/a profesor/a podrá inscribir tantos equipos como considere, pero se limitará la entrega de proyectos a 2 equipos por profesor/a y curso, teniéndose por tanto que hacer una selección previa de aquellos trabajos que considere más adecuados para su presentación a la Olimpiada.
Fase 2: Realización del Proyecto. Del 1 de febrero al 12 de abril
Esta será la fase en la que se desarrollará el proyecto.
Los equipos de trabajo desarrollarán libremente sus propuestas en las que deberán justificar las soluciones que se adopten: materiales y sistemas, características de los elementos elegidos, viabilidad de la propuesta, etc.
Los resultados deberán presentarse como fecha límite 12 de abril de 2024 a las 15:00h (hora peninsular) .
Cada equipo debe presentar:
- Un poster en tamaño A1 en formato pdf, donde se reseñen los principales aspectos a los que se da solución.
- Un video explicativo en formato AVI, MP4, MOV o MKV, con una duración entre 5 y 8 minutos.
Ambos archivos se subirán a un servicio de alojamiento de archivos multiplataforma en la nube (Dropbox, OneDrive, etc.) o YouTube, siendo necesario que el enlace sea accesible para cualquier usuario. El enlace para poder descargarlo debe enviarse a la dirección de correo electrónico politecnica.cu@uclm.es.
En el asunto del mensaje sólo deberá constar: IV OLIMPIADA “Ingeniería en Edificación: Construyendo con Ingenio”. En el texto del mensaje deberán figurar: título del trabajo, nombre y localidad del centro, nombres y apellidos de los integrantes del equipo, así como el del profesorado que ha coordinado el proyecto y sus datos de contacto (teléfono y dirección de correo electrónico*). Se enviará acuse de recibo por correo electrónico.
Los 3 mejores trabajos de cada nivel académico serán seleccionados para su pase a la Semifinal.
El resultado será publicado en la web y comunicado a todos los participantes, por correo electrónico*, el día 29 de abril, informándoles también del día y hora en el que se tendrá que hacer la exposición de los proyectos, el sistema de videoconferencia utilizado y/o la posibilidad de hacer una exposición presencial en la Escuela Politécnica de Cuenca.
Fase 3: Semifinales-Comunidad Autónoma de Castilla-La Mancha. Del 6 al 10 de mayo
Los trabajos seleccionados realizarán la exposición del proyecto entre el 6 y 10 de mayo, compitiendo por un puesto en la Fase final.
Para la exposición del proyecto los equipos podrán utilizar una presentación de ayuda en formato pdf, power point, o cualquier otro formato. Se contará con 10 minutos para la exposición y posteriormente se realizará un pequeño debate, de no más de 10 minutos entre el tribunal y el equipo de trabajo sobre las soluciones propuestas.
Los integrantes de todos los equipos recibirán un diploma que acredite su participación en la Olimpiada.
Pasará a la final nacional 1 equipo de cada uno de los niveles académicos, el que más puntos obtenga según los criterios de valoración establecidos.
Los equipos ganadores de cada nivel educativo recibirán un premio valorado en 250€.
Fase 4: Fase final- Nivel Nacional
Los trabajos de los equipos ganadores se harán llegar por correo el día 13 de mayo, por parte de las Escuelas organizadoras a nivel regional, a la CODATIE.
Los tribunales nacionales constituidos por organismos, entidades y /o profesionales de la construcción darán a conocer el resultado de los equipos ganadores a la CODATIE.
El resultado se dará a conocer el día 7 de junio por videoconferencia.
Los premios para los equipos ganadores de cada nivel académico serán:
- ESO:
- BACHILLERATO:
- CFGS:
- CFGM:
Criterios de valoración
En los trabajos se valorará en primer lugar la capacidad de justificación de las soluciones adoptadas, pero también el ejercicio de síntesis que la exposición de la misma requiere.
En su exposición los equipos podrán designar un/a representante que exponga los trabajos realizados, pero se valorará especialmente la participación de todos los miembros.
El 70% de la valoración obtenida corresponderá con la justificación técnica de las soluciones adoptadas y el 30% con la exposición y defensa del trabajo frente al tribunal.
PATROCINAN:
